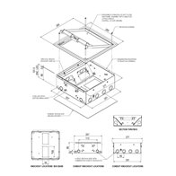
The EB9SRB Endura Series Floor Box from Cableaway is a versatile in-floor solution designed for commercial and office environments. Featuring a recessed lid, it allows floor coverings such as carpet or tile to be integrated for a seamless, unobtrusive finish. Constructed with a durable steel body, it is built to withstand everyday use in high-traffic areas. The unit supports a range of power, data, and AV configurations, offering flexibility for modern workspace requirements. Suitable for new installations and retrofit projects, it includes multiple conduit entry points for efficient cable management and reliable service access.
Secure Payments are easier than ever! Stripe's payment solutions
Delivery Option’s, you choose from our list of delivery partners
Manufactures warranty on all Cableaway sold products.
EB98 BOX, STAINLESS STEEL RECESS SOFT CLOSE LID BEVEL SURROUND, 4 X PROVISION TO MOUNT STANDARD PLATE
