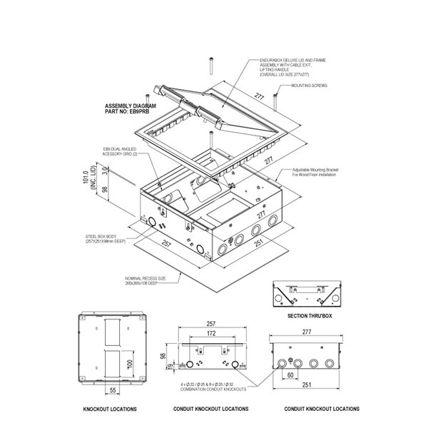
The EB9PRB Endura Series Floor Box from Cableaway is a practical in-floor solution designed for commercial and office environments. Featuring a recessed lid, it allows floor coverings such as carpet or tile to be integrated for a clean, seamless finish. Built with a durable steel body, it provides strength and reliability in high-traffic areas. The unit supports a range of power, data, and AV configurations, offering flexibility for modern workspace requirements. Suitable for both new installations and retrofit projects, it includes multiple conduit entry points for efficient cable routing and dependable service access.
Secure Payments are easier than ever! Stripe's payment solutions
Delivery Option’s, you choose from our list of delivery partners
Manufactures warranty on all Cableaway sold products.
EB98 BOX, PLASTIC RECESS LID BEVEL SURROUND, 4 X PROVISION TO MOUNT STANDARD PLATE
