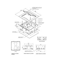
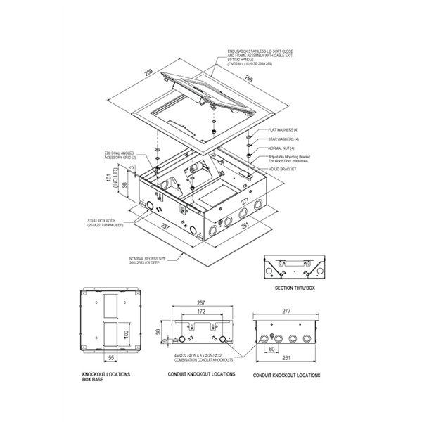
The EB9SHDRB Endura Series Floor Box from Cableaway is a heavy-duty in-floor solution designed for commercial and industrial environments. Featuring a recessed lid, it allows floor finishes such as carpet or tile to be integrated for a seamless, low-profile appearance. Constructed with a robust steel body, it is built to withstand high-traffic areas while maintaining durability and performance. The unit supports a range of power, data, and AV configurations, offering flexibility for modern workspace requirements. Suitable for new installations and retrofit projects, it includes multiple conduit entry points for efficient cable routing and reliable service access.
Secure Payments are easier than ever! Stripe's payment solutions
Delivery Option’s, you choose from our list of delivery partners
Manufactures warranty on all Cableaway sold products.
EB98 BOX, STAINLESS STEEL HEAVY DUTY RECESS SOFT CLOSE LID BEVEL SURROUND, 4 X PROVISION TO MOUNT STANDARD PLATE
