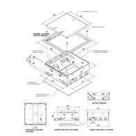
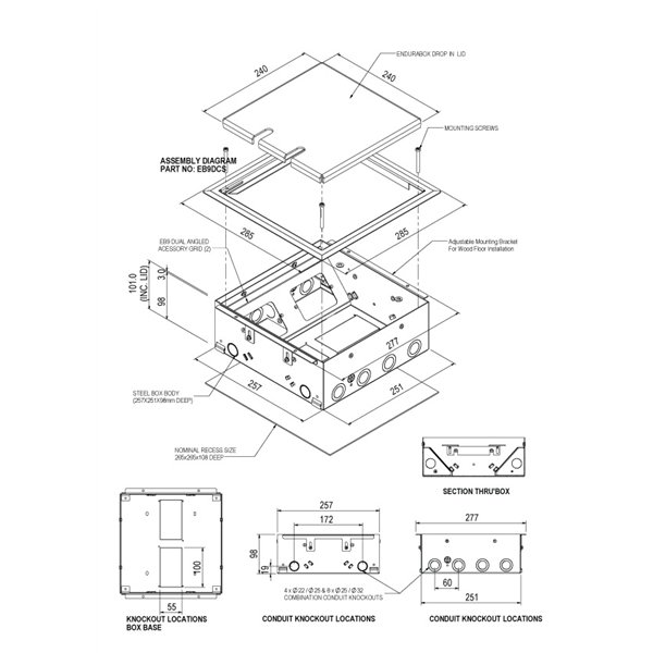
The EB9DCS Endura Series Floor Box from Cableaway is a versatile in-floor solution designed for commercial and office environments. Featuring a dual-compartment design, it allows for safe segregation of power and data services within a single unit, improving organisation and compliance. Constructed with a durable steel body and low-profile lid, it is built to withstand everyday use in high-traffic areas. The unit supports a range of power, data, and AV configurations, offering flexibility for modern workspace requirements. Suitable for both new installations and retrofit projects, it includes multiple conduit entry points for efficient cable routing and reliable service access.
Secure Payments are easier than ever! Stripe's payment solutions
Delivery Option’s, you choose from our list of delivery partners
Manufactures warranty on all Cableaway sold products.
EB98 BOX, DROP IN LID, CARPET SURROUND - 4 X PROVISION TO MOUNT STANDARD PLATE
