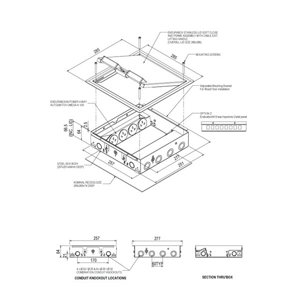
The EB6SFB4P8D Endura Series Floor Box from Cableaway is a high-capacity in-floor solution designed for commercial and office environments. Featuring a durable flush lid and robust steel body, it delivers a clean, low-profile finish while withstanding high-traffic areas. Configured with 4 power outlets and 8 data provisions, it supports modern workspace connectivity requirements. The unit allows flexible integration of power, data, and AV services, making it ideal for meeting rooms and open-plan layouts. Suitable for new installations and retrofit projects, it includes multiple conduit entry points for efficient cable routing and reliable service access.
Secure Payments are easier than ever! Stripe's payment solutions
Delivery Option’s, you choose from our list of delivery partners
Manufactures warranty on all Cableaway sold products.
EB64 BOX, STAINLESS STEEL FLUSH SOFT CLOSE LID BEVEL SURROUND, 4 X AUTO SWITCHED POWER, PROVISION TO MOUNT 8 X KEYSTONE DATA (EXCLUDES BEZEL)
