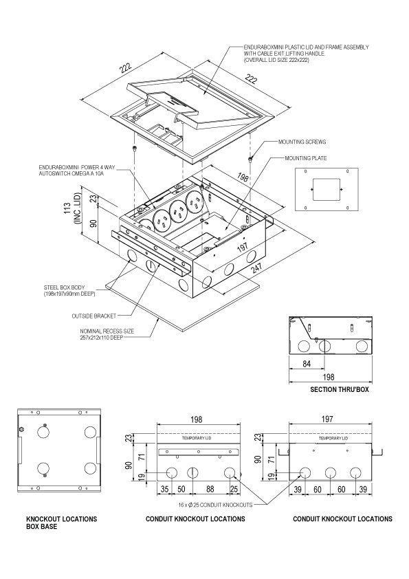
The EBMPRB4P Endura Series Floor Box from Cableaway is a practical in-floor solution designed for commercial and office environments. Featuring a recessed lid, it allows floor coverings such as carpet or tile to be integrated for a seamless finish. The robust steel body ensures durability in high-use areas, while the unit comes pre-configured with 4 power outlets and provisions for data and AV services. Suitable for both new installations and retrofit applications, it includes multiple conduit entry points for efficient cable management. Designed for flexibility and clean aesthetics, the EBMPRB4P delivers reliable power and communication access where it’s needed.
Secure Payments are easier than ever! Eway’s payment solutions
Delivery Option’s, you choose from our list of delivery partners
Manufactures warranty on all Cableaway sold products.
EBM BOX, PLASTIC RECESS LID BEVEL SURROUND, 4 X AUTO SWITCHED POWER, 1 X PROVISION TO MOUNT STANDARD PLATE
