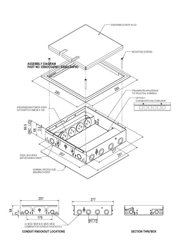
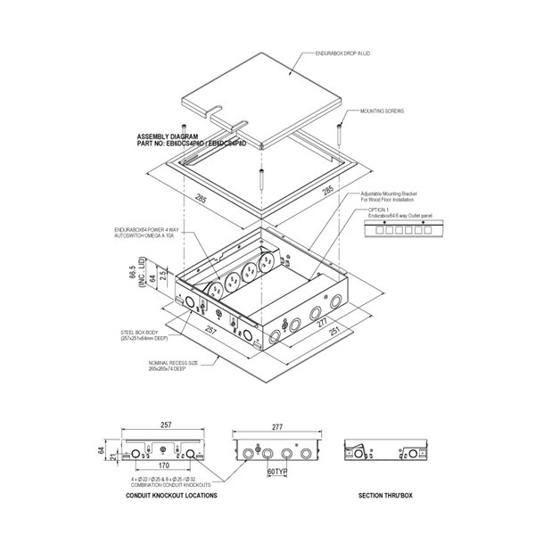
The EB6DCS4P6D Endura Series Floor Box from Cableaway is a high-capacity in-floor solution designed for commercial and office environments. Featuring a dual-compartment design, it allows safe segregation of power and data services within a single unit, supporting compliance and improved cable management. Constructed with a durable steel body and low-profile lid, it is built to withstand high-traffic areas while maintaining a clean finish. Configured with 4 power outlets and 6 data provisions, it meets modern connectivity demands. Suitable for new installations and retrofit projects, it includes multiple conduit entry points for efficient cable routing and flexible service integration.
Secure Payments are easier than ever! Eway’s payment solutions
Delivery Option’s, you choose from our list of delivery partners
Manufactures warranty on all Cableaway sold products.
EB64 BOX, DROP IN LID, SURROUND, 4 X AUTO SWITCHED POWER, PROVISION TO MOUNT 6 X DATA/MECH (COMPLETE WITH BEZEL)
